2026/03/03
西宮市門戸西町中古戸建
| 価格 | 4600万円 |
|---|---|
| 住所 | 西宮市門戸西町8-5 |
| 交通 | 阪急今津線『甲東園』駅より徒歩11分/『門戸厄神』駅より徒歩11分 |
| 築年月 | 1996年9月 |
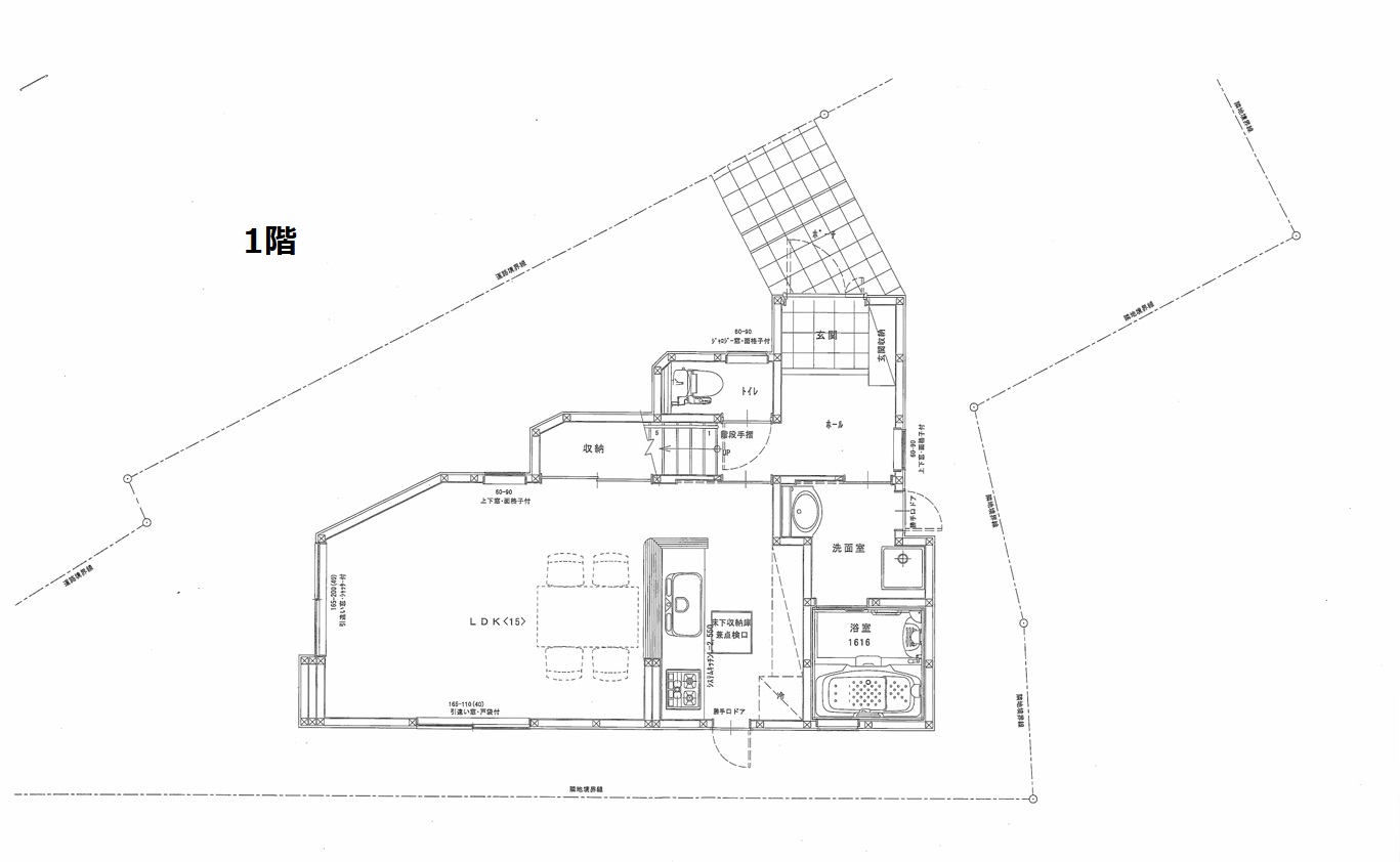
| 専有面積 | 土地面積100.89㎡ 建物面積83.83㎡ |
| 管理費 | ― |
| 特徴 | ■人気の文教地区エリアです■ ☆弊社売主☆ 【所在地】 門戸西町8-5 ・甲東小学校まで350m ・甲陵中学校まで850m ・KOHYO甲東園店まで850m ・いかり門戸店まで1000m |
西宮市下大市東町中古戸建
| 金額 | 4,780万円 |
|---|---|
| 住所 | 西宮市下大市東町30-5 |
| 交通 | 阪急今津線『門戸厄神』駅より徒歩5分 |
| 土地面積 | 100.89㎡ |
| 建物面積 | 83.83㎡ |
| 完成時期 | 1996年9月 |



